| Elérhetőség állapota: | |
|---|---|
termékleírás
A Starsplas automata keverőrendszereket gyárt, amelyeket kifejezetten a PVC vagy WPC műanyagipar keverőműhelyei számára terveztek. Ezt a zárt rendszert különféle por-, részecske- és folyékony extrudálások automatikus adagolására, adagolására, keverésére és adagolására használják. Munkát takarít meg, és megakadályozza, hogy az alkalmazottak közvetlenül érintkezzenek a porral.
1. Automata etetőrendszer - felügyelet nélkül
Az SPC PVC Automatic Mixing megoldásokat kifejezetten a PVC vagy WPC műanyagipar keverőműhelyeihez tervezték. Ez a zárt rendszer különféle porok, részecskék és folyadékok automatikus adagolására, adagolására, keverésére és adagolására szolgál. Munkamegtakarítást eredményez, és megakadályozza a porral való közvetlen érintkezést.
2. Központi porgyűjtő rendszer – pormentes
PVC, WPC műanyagipari keverőműhely por több, munkavállalói mobilitás. A központi adagolórendszer alkalmazásakor úgy döntünk, hogy a porgyűjtőt a porképző nyíláshoz csatlakoztatjuk, hogy ez az alkatrész összegyűjthető és újrahasznosítható legyen. A pormentes műhely nemcsak a modern ipari szabvány, hanem rengeteg anyagot és munkaerőt is megtakaríthat.
3. Központi vezérlőrendszer -- intelligens
Az intelligens vezérlőrendszer célja, hogy elkerülje a kézi működtetésből eredő hibákat és veszteségeket, mint például az adagolási képlet hibája, amely tételesen minősítetlen, másodlagos feldolgozási hulladékhoz vezet. Az automatikus adagolási funkció hiánya alultöltéshez vezethet, ami károsítja a csavart és az extrudert. A kulcs az, hogy hiányzik egy automatizált rendszer az anyagok gyártáson alapuló kiszámításához.
| összetevő | hatalom | ||||||
| Fűtés/hűtés keverő kombináció | 245 kW | ||||||
| PVC&CACO3 automatikus adagoló mérőrendszer | 18,5 kW | ||||||
| Automatikus adalékos mérőrendszer | 7,8 kW | ||||||
| Adalékos poreltávolító rendszer | 1,5 kW | ||||||
Széles körben használják a vegyiparban, akkumulátor-alapanyagokban, bevonatokban, színezékekben, növényvédő szerekben, gyógyszerekben, élelmiszerekben, takarmányokban, adalékanyagokban, új tűzálló anyagokban, elektronikában, műanyagokban, kerámiákban, műtrágyákban, kohászatban, bányászatban, szárazhabarcsban, EPS-ben, speciális építőanyag-iparban, mint pl. por, szilárd por folyékony keverék.

Kérdések és válaszok
1. Hogyan kell karbantartani a keverőt?
①.A berendezés működési eljárásai szerint kell végrehajtani, ami a berendezés megfelelő karbantartása.
②.Ügyeljen a berendezésre a normál indítás után, mielőtt a keveréket hozzáadja, a hozzáadást a kívánt sorrendben lassan kell elvégezni.
③.Készítse elő a gumigyűrűt, a gumigyűrűt, az ékszíjat és a gördülőcsapágyat a tömítőgyűrűhöz, a tengelykapcsolóhoz.Ezen alkatrészek működő részei hajlamosak a meghibásodásra.Szükség esetén időben, időszakonként (általában az első negyedévben) cserélni kell, ellenőrizni kell, hogy a rögzítők kilazultak-e, ellenőrizni kell az ékszíj beszerelésének feszességét, valamint a berendezés minden részét meg kell tisztítani és meg kell tisztítani.
Elérhetőség
WhatsApp:+86 19962650268
TEL:+86 19962650268
Wechat:+86 19962650268
Posta: eve@starsplas.com
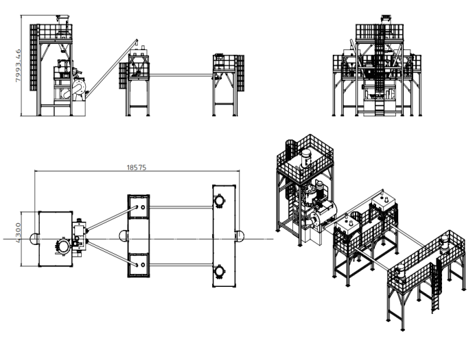
Termékmegjelenítési rajz




Itthon | Termékek | Rólunk | Megoldás | Szerviz és Támogatás | Videó | Hírek | Lépjen Kapcsolatba Velünk